POKOJE
ŁÓŻKA PODWÓJNE I POJEDYNCZE
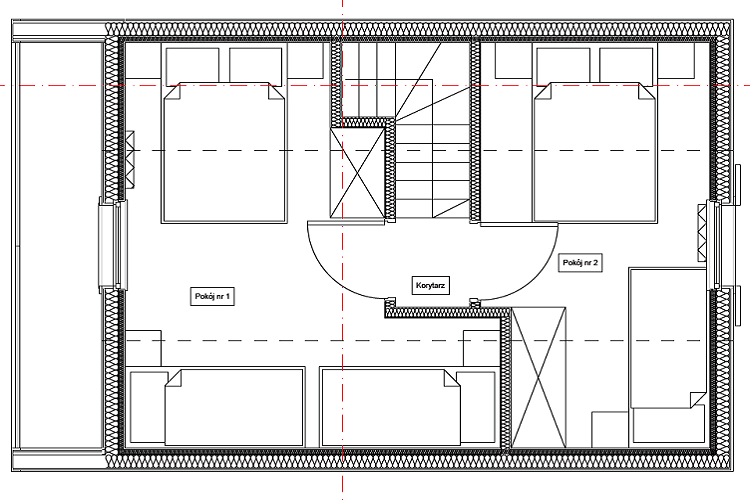
Na piętrze znajdują się dwie sypialnie. Jedna wyposażona jest w jedno łóżko podwójne 140×200 i dwa łóżka pojedyncze 90×200 oraz druga wyposażona w łóżko podwójne 140×200 i jedno łóżko pojedyncze 90×200. Na parterze opcjonalnie można rozłożyć kanapę narożnikową uzyskując dwa dodatkowe miejsca do spania 140×200. Domek może przyjąć 9 gości, przy czym im mniejsza ilość osób tym bardziej komfortowy pobyt.
MATERACE
Materac o wysokości 18cm, stworzony z myślą o wymagających użytkownikach. Materac wykonany jest w technologi sprężyn bonellowych obłożony obustronnie pianką poliuretanową z atestem PZH, filcową wkładką oraz grubym pokrowcem zewnętrznym. Stopień twardości średni – idealny dla większości ludzi.
NAJMNIEJSI GOŚCIE
Dla najmniejszych dzieci dostępne są turystyczne łóżeczka dziecięce, wanna do kąpieli, podstopień do umywalki, nakładka na WC.
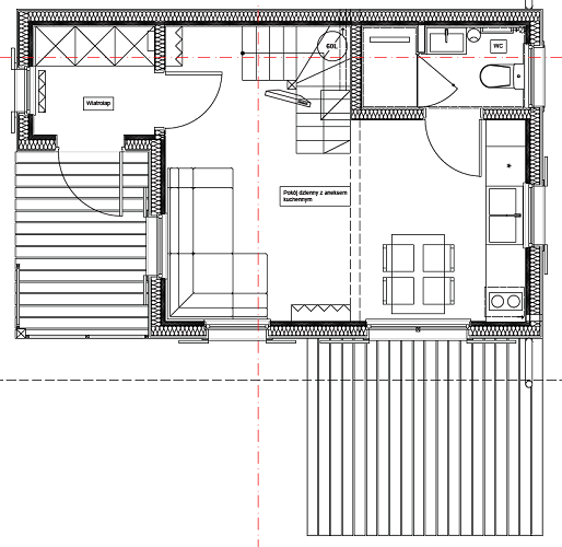
RZUT PARTERU

RZUT PODDASZA
